Anderson Homes Columbia, TN

New Homes For Sale

New Homes For Sale

New Homes For Sale

Are you looking for new homes for sale in Middle TN?

New Home

Granite Counters

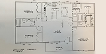
1290 square feet, 3 bedrooms, 2 baths, Full Master Suite

Open Floor Plan

Open Floor Plan

Large, custom kitchen with island and lots of natural light.

New Homes Lewisburg TN

811 Meadow Street Lewisburg, TN

New construction, 1480 sf (est), 2 car garage.

Plat Meadow Lewisburg

Acreage with room to grow

5 acres includes a 1/2 acre lake on property.

Meadow Street lewisburg TN

Open Floor Plan - Zoned BRs

3 bedrooms, 2 baths, kitchen w/walk-in pantry.

New Home Construction

New Construction

New construction under $135,000.

Floor Plan

Unique Home Design

New home with a 16x6 Porch and 16x10 Deck.

Building Lot

Building Lot Size

Lot 95'x140'(est) in Lewisburg, Marshall County.

Contractor Services

Anderson Homes LLC will walk through the process with you, from choosing the land to completing your new home.

You're in good hands with Larry Anderson, Tennessee's custom home builder.

  • New Kitchen or Bath
  • Custom Tile Work
  • Hardwood Floors & New Carpet
  • Decks, Roofs & Garages
  • Trim Work, Siding & Overhangs
  • Plumbing, Electrical & HVAC
  • Concrete Driveways and Patios
  • Basement and Attic Conversions

Financing

Real Estate

We will have contact information coming soon.

Construction Loan

Anderson Homes offers Custom Designed Homes to fit any budget. Anderson Homes can help you create your own floor plans.

Lot Loan

We will build on your lot or we can offer a choice of lots from our prime holdings.

Mortgages

Depending on your needs, we have several mortgage lenders we can refer you to as well as top selling real estate agents to assist with selling your current home.